"My brother in law is
building a barn from one of your plans, and I am very impressed"
- P.B., Four Seasons, MD
|

Berrywood Pole-Frame Garage Plans
Design by
Donald J. Berg, AIA
Instant Download Building Plan Set #BP-101
Build this
compact, economical pole-frame garage for two cars or small
trucks and extra storage space in a high and dry loft.

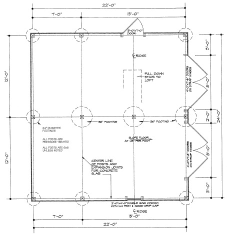
Floor Plan
Floor Area of Main
Garage/Barn - 528 Sq.Ft., Floor Area of Storage Loft - 360 Sq.Ft.
Ridge Height: 18'-6"
Side Wall Height: 8'-6"
Mean Roof Height: 12'-8" (Most Building Departments will accept
the mean roof height for sloped roof buildings)
Main Barn Roof Pitch: 14/12
Shed Roof Pitch 5/12
Garage Door Openings: 8'-0” wide,
7'-6"" high
Garage Ceiling Height" 7'-11"
Loft Height: 7'-6" at Center
134 square feet of the Loft floor area has full standing room.
The construction drawings include floor plans, general
specifications, exterior elevations, building sections, large
scale details, dimensions and engineering standards for all
framing and footings.
|
Plans are $29.00 and are delivered
instantly by a link to an easy-to-use web page with this plan set and a variety
of other garage, barn, shed and workshop designs. In all, you'll be able to choose from
more than one hundred different building designs, layouts and sizes. You'll also be able to download any and all of the plans and
print as many copies of each as you'd like. This plan set comes with a complete
money-back guarantee.
PayPal's quick, secure
checkout accepts all major credit cards.
|
|
Your
Security and Guarantee |
|
 |
Your plans
come with a complete money-back guarantee. Order them
and review them for up to sixty days. Print them and
show them to your builder, your neighbors or your
building department. If they don't
meet your needs, for any reason, just ask and you'll get
a complete, prompt refund. We are proud of our plans, of our
guarantee and that we've been a PayPal Security Verified
Merchant, continuously, since June, 2000. |
|
|
|