
Photo provided by
homeowner Mike M. of Powhatan, VA*
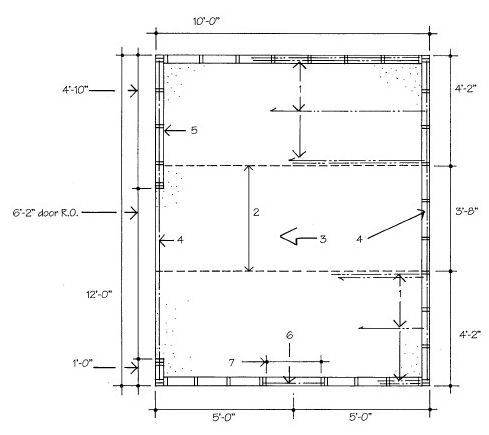
10'x12' Garden Tool and Lawn Tractor Storage Shed Plans
Design by
Donald J. Berg, AIA
Instant Download Building Plan Set #BP-101
This attractive shed is a sturdy, permanent stud-frame building
on a concrete slab foundation. It's sure to give you years and
years of use. Convenient storage lofts add almost eighty square
feet of extra space. You can use the loft space for holiday
decorations, seasonal furniture and more. The high-and dry space
is a great place to protect family records and important papers
that you don't need to get to often, but have to keep safe.
The downloadable blueprints include a framing plan, a framing
section, exterior elevations and construction and finish
details. The details include door building diagrams, but any of
a variety of prefab doors can be used on this shed. A free,
complete material list is available here:
View and print the material list for this
shed

Floor Plan
*
"I thought you might
like to see a photo of a finished shed that I built using your plans...I
did it all... It was a rewarding project, and is a much better shed
than you can buy prefabricated. Thanks again."
- Mike M, Powhattan,
VA