"My brother in law is
building a barn from one of your plans, and I am very impressed"
- P.B., Four Seasons, MD
|

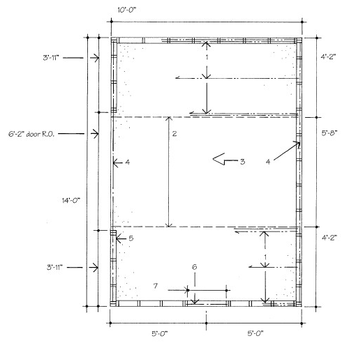
10'x14' All-Purpose Storage Shed Plans
Design by
Donald J. Berg, AIA
Instant Download Building Plan Set #BP-101
This design adds almost eighty square feet of convenient loft
storage space to a generous floor area. It's window is located
high to allow tool storage or a workbench along the side wall.
It's planned for your use for garden tool and lawn tractor
storage, but it's big enough for a variety of uses. Add French
doors and screens and you'll have a pretty cabana or backyard
office. Insulate it and add electricity and you'll have a great
hobby shop or crafts studio.
The downloadable blueprints include a framing plan, a framing
section, exterior elevations and construction and finish
details. The details include door building diagrams, but any of
a variety of prefab doors can be used on the shed. A free,
complete material list is available here:
View and print the material list for this
shed

|
Plans are $29.00 and are delivered
instantly by a link to an easy-to-use web page with this plan set and a variety
of other garage, barn, shed and workshop designs. In all, you'll be able to choose from
more than one hundred different building designs, layouts and sizes. You'll also be able to download any and all of the plans and
print as many copies of each as you'd like. This plan set comes with a complete
money-back guarantee.
PayPal's quick, secure
checkout accepts all major credit cards.
|
|
Your
Security and Guarantee |
|
 |
Your plans
come with a complete money-back guarantee. Order them
and review them for up to sixty days. Print them and
show them to your builder, your neighbors or your
building department. If they don't
meet your needs, for any reason, just ask and you'll get
a complete, prompt refund. We are proud of our plans, of our
guarantee and that we've been a PayPal Security Verified
Merchant, continuously, since June, 2000. |
|
|
|